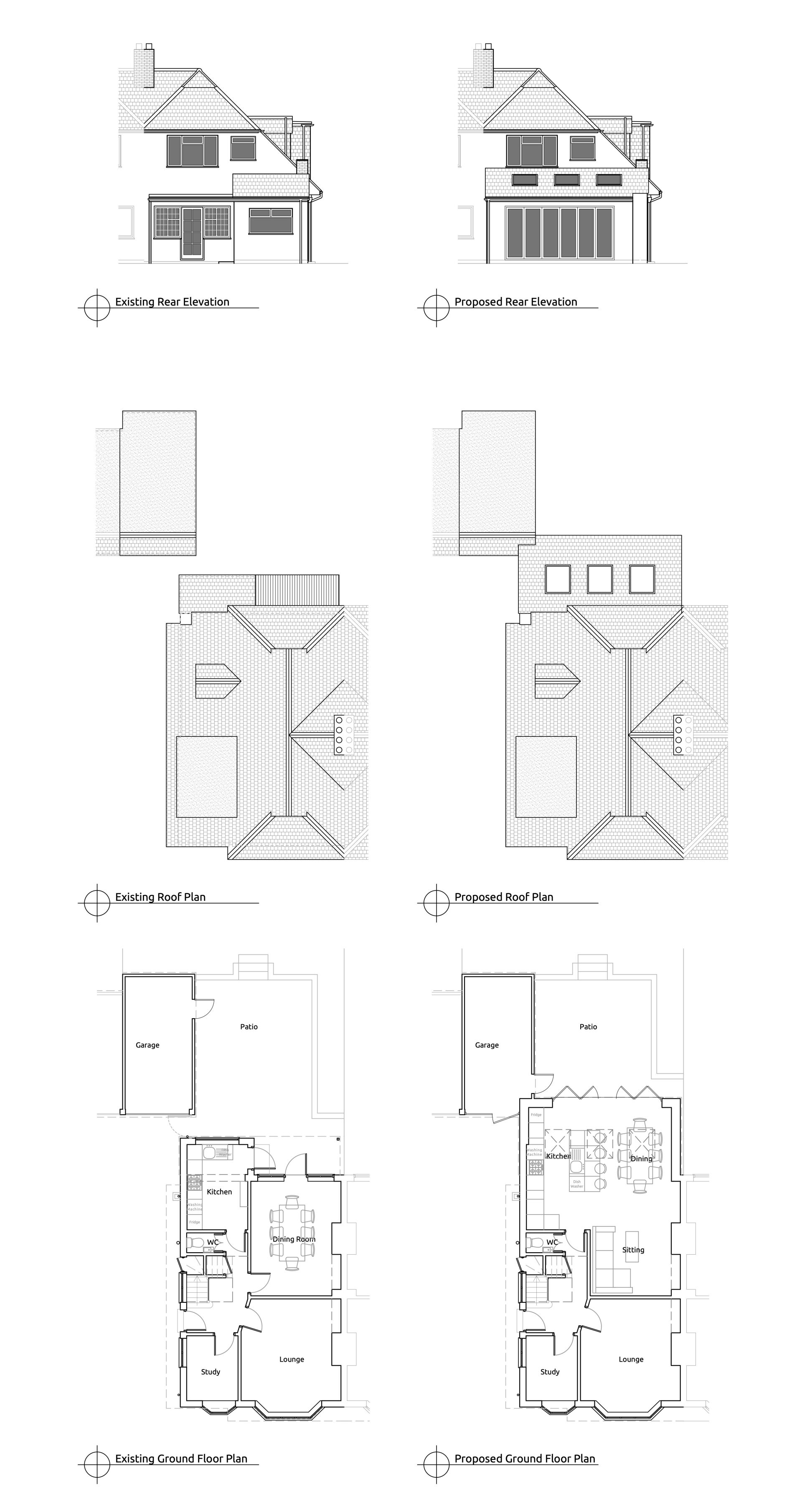
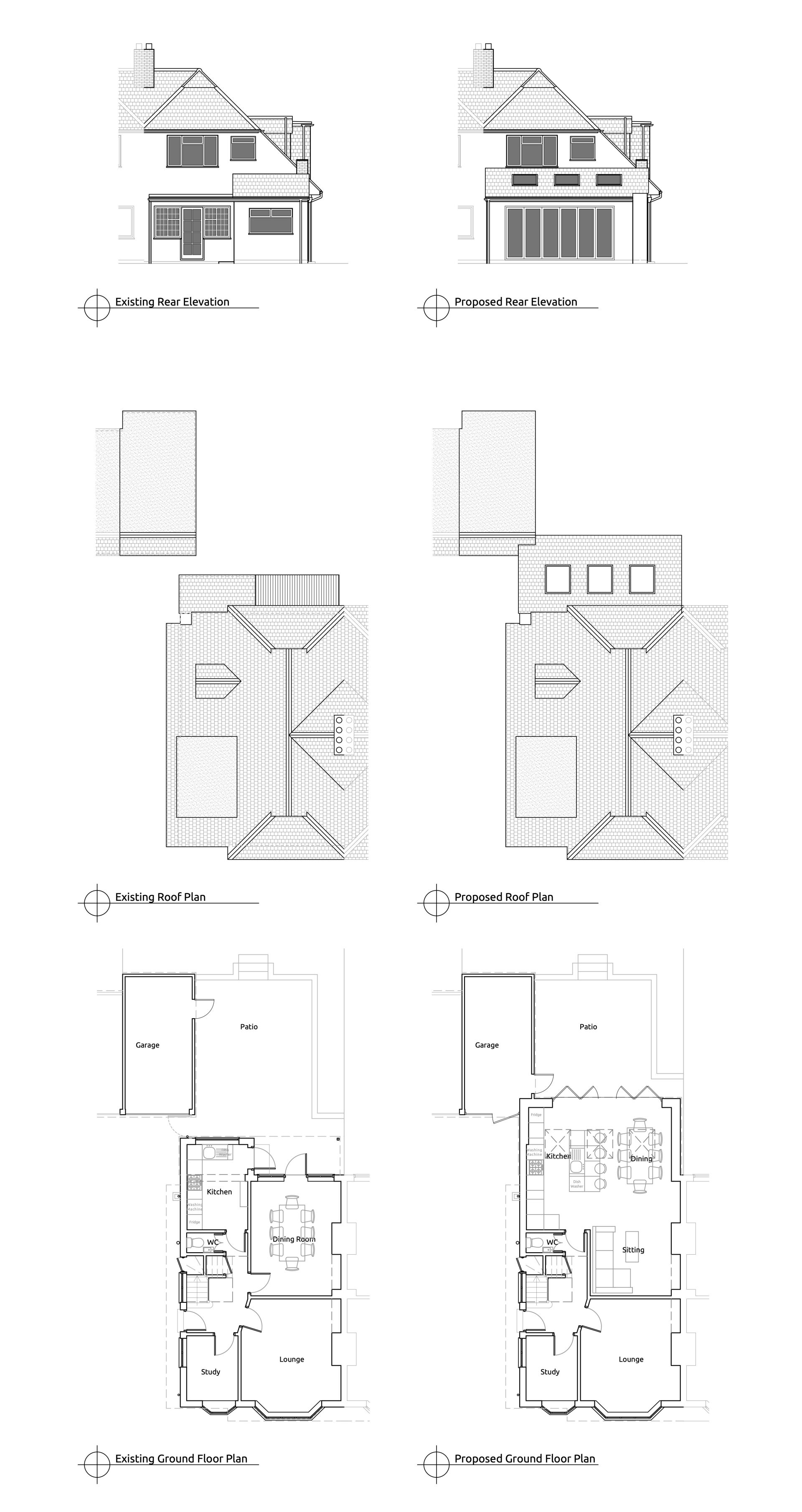
Rear extension with internal remodelling
Epsom
Located in the heart of Epsom, the owners of this 1930's house wanted to open up the space on the ground floor and make the most of the connection with the garden.
The design included a single storey rear extension and the removing of some internal walls to create practical open plan living that flowed into garden.
The design aimed to get a balance of creating addition interior space without taking up too much of the garden.

